深圳绿景白石洲(绿景白石洲_绿景白石洲)首页网站|售楼处电话-房价-户型-地址
扫描到手机,新闻随时看
扫一扫,用手机看文章
更加方便分享给朋友
楼盘详情咨询:4001384006转999 ,售楼处电话、营销中心电话、价格、地址、户型图、小区图片、区位优势、交通、周边商业配套等楼盘详细资料;更详细楼盘资料和最新折扣价格,请拨打售楼处电话。开发商售楼处直销_欢迎来电预约尊享内部折扣_匠心钜制恭迎品鉴!售楼处电话: 4001384006转999

关于开发商
《绿景白石洲璟庭》项目发展商为『深圳市绿景天盛实业有限公司』其母公司是『深圳市四达实业发展有限公司』,而“深圳四达”由绿景中国旗下的『智慧城市发展有限公司-92%』和万科集团旗下的『深圳市深全房地产开发有限公司-8%』共同出资组建。
“绿景中国”是深圳知名综合性地产开发及商业运营商,拥有房地产开发、商用投资、综合服务三大业务板块。多年来,公司按照“深耕核心城市,聚焦城市核心”的战略规划布局,积极参与珠三角地区城市建设。

特别是深圳城市更新的住宅和商业发展专案,曾开发了以绿景花园、绿景新苑、绿景蓝湾半岛、绿景中城天邑、NEO企业大道、绿景香颂花园、绿景公馆1866为代表的多个城市精品住宅。

《绿景白石洲璟庭》位于深圳市南山区沙河街道白石洲片区,新塘社区沙河街与新塘街交汇处东南侧,北侧临香山美墅,南临深南大道和红树湾片区,西临大沙河湿地名商高尔夫球会、东临华侨城纯水岸,属于深圳公认的低密豪宅区“华侨城组团”。

项目地块是“沙河五村旧改”的一部分,于2014年立项,更新单元用地面积约48万㎡,拆除用地面积约45.95万㎡,开发建设用地面积约30.37万㎡,规划总建筑面积约500万㎡,计容积率建面约347.96万㎡,体量远超南山华润城、龙华壹城中心,是深圳迄今最大的旧改项目。

“沙河五村城市更新单元”整备完成后会被分割成19个地块,其中纯住宅用地2块,住宅+商办用地12块,纯商办用地2块、教育用地3块,集住宅、商业、办公、酒店、公寓、幼儿园、九年制学校、社康、文体活动中心、社区级公共配套等多元业态于一体。

整个“沙河五村旧改”分四期拆除、四期建设,其中01-08(白石洲璟庭)商品房和01-10(白石洲天悦花园)回迁房两个地块为一期,占地面积约6.15万㎡,规划总建筑面积约98.71万㎡,计容建面约73.45万㎡,涵盖精品住宅、商务公寓、集中式商业,社区级公共配套等业态。

《绿景白石洲璟庭》项目占地面积约3.05万㎡,总建筑面积约45.66万㎡,计容建面约33.43万㎡,容积率10.9,包含约15.7万㎡住宅、约9.99万㎡商务公寓、约5.34万㎡集中式商业、约3500㎡变电站,另有其它基础配套设施若干。

《绿景白石洲璟庭》由6座建筑组成,其中1栋1-2单元为26/59层塔楼商务公寓,1栋3-5单元为74层塔楼住宅,西北角有一栋4层高的110KV变电站。小区底部为3层裙楼商业,商业顶部是架空花园,1楼与12楼分别设置有通往“天悦花园”的连廊,与“天悦”商业及塔楼互通。

“璟庭”与“天悦”两个地块之间布置的“中央绿轴”贯穿整个“白石洲”项目,总长度达1.2公里,串联各业态空间,打造集购物、旅游、文娱、休闲为一体的,可玩、可逛、可互动的24小时开放城市新潮街区。

同时,项目还创新打造了地上与地下七重结构立体化交通系统,不同交通系统分层互联,人行系统、城市公共道路系统、地下轨交系统快速接驳,最大程度实现人车分流,科学化疏解交通压力。

目前《绿景白石洲璟庭》项目正在建设中,建筑主体已建至25-30层,根据“绿景白石洲璟庭总承包工程”施工许可证显示,竣工时间要到2025年12月30号,据悉会在2025年底或2026年初精装修交付,网传项目将于下个月(9月)初备案入市。
点击进入《绿景白石洲璟庭》全景VR

目前关于项目平面图、基本参数、产品户型、交付相关信息等已明确,营销中心已经开放,做了110㎡、125㎡A、125㎡B三个户型的异地样板间,已开放接待和参观,感兴趣的朋友可以与我们预约前往实地了解,不仅能为您提供专业的一对一置业服务,还能获得专属渠道购房补贴。

PART.肆
户型朝向及视野景观
《绿景白石洲璟庭》共6座主体建筑,除了1座变电站,1栋1-2单元是商务公寓,总共1497户;1栋3-5单元是可售商品住宅,总共1257户。
1栋3单元和1栋4单元低区(47层及以下)是4梯7户,高区(48楼及以上)3梯6户,架空层设置在13层/32层/51层/63层。
1栋5单元低区(47层及以下)为3梯6户,高区(48楼及以上)3梯6户,架空层设置在13层/28层/44层/59层。
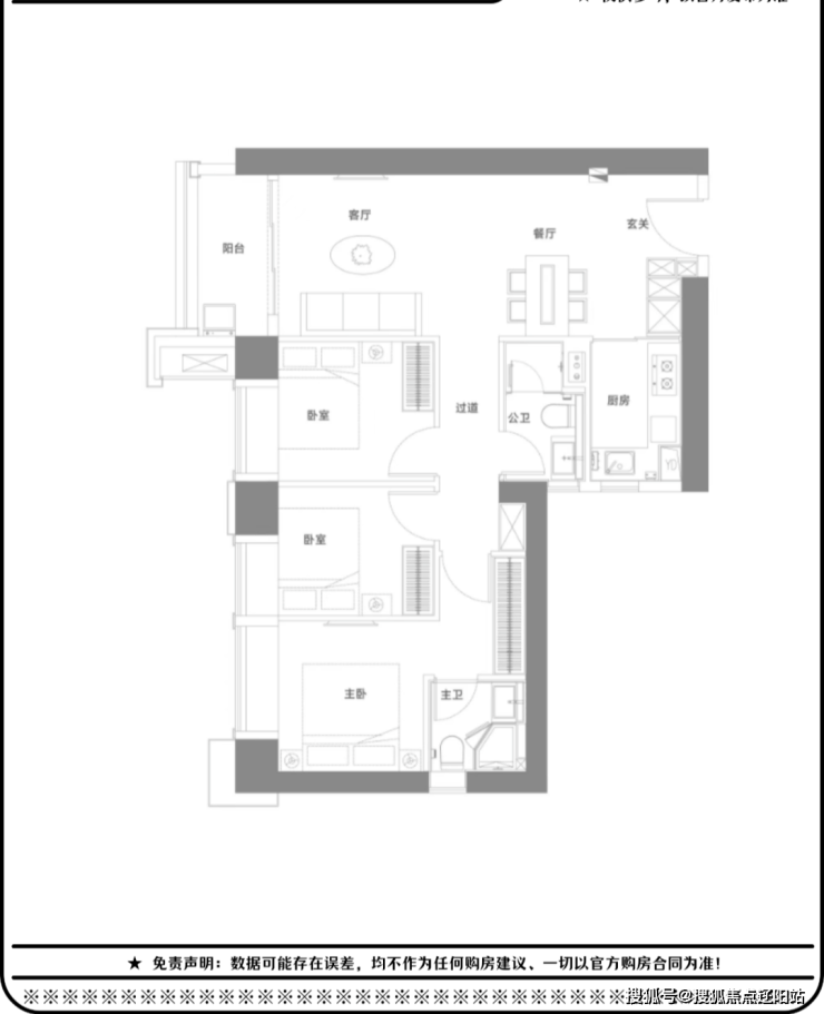
单层层高3米-3.15米不等,顶楼复式首层是3.3米,二层是3.6米,总的6.9米的挑高,具体详情请参照下图。

项目主力产品是建面约110㎡三房两厅两卫,约118㎡三房两厅两卫,约125㎡三房两厅两卫,三种户型户型。
1栋3单元52-62层、64-72层和1栋4单元64-72,分布有58套187㎡的四房两厅两卫户型。
1栋3单元和4单元的73-74层是建面约280㎡、约400㎡的复式。

因为开发商没有公布户型的具体尺寸,所以户型得房率这块没办法客观评价,但从开发商对于自家产品不自信和曝光的建面与功能间配比来说,得房率肯定是不突出的,看异地样板房也能明显感觉到,根据销售口径和实际感受来说,估计得房率也就在72%左右的样子,肯定是不高的。
①建面约110㎡户型,主力户型之一,竖厅,动静分区结构,结构本身和功能间布局没啥问题,主要是厨房、公卫、主卫开窗都处在天井中,本身这三个功能间都是味道比较大的,不利于通风、日照、采光。
②建面约118㎡户型,货量最少,就只有一条腿,竖厅、双龙抱珠结构,入户玄关自带隐私性,双龙抱珠是有人喜欢有人厌,受众没那么广,比较明显的槽点是厨房和公卫开窗在天井中,主卫还是个暗卫,不利于通风、日照、采光。


③:建面约125㎡A户型,是货量最大的,很经典的那种竖厅动静分区结构,分布在角落位置,双面采光,入户玄关自带隐私性,整体结构没啥突出槽点,估计比较讨喜。
建面约125㎡B户型,户型与118㎡户型很像,都是双龙抱珠结构,就主卫的位置移动了一下,结构本身没啥大问题,主要的槽点是厨房和公卫开窗在天井中,主卫是个暗卫,不利于通风、日照、采光。
建面约125㎡C户型,也是双龙抱珠结构,但与118㎡户型差异大,也是结构本身没啥大问题,比较突出的槽点是公卫与生活阳台处在天井中,主卫虽然有开窗,但对着生活阳台也挺尴尬的。
④建面约187㎡户型,本身分布在高区,通风、日照、采光各方面肯定是没啥问题,结构也是竖厅动静分区的,入户玄关自带隐私性,餐客厅短进深大开间,配有宽景阳台,厨房生活阳台。
至于复式户型开发商没公布,咱也不好评价,一般达到这个段位产品户型结构想不好都难,更何况对于它来说还是极度稀缺的压箱底产品。




项目朝向有西北、西南、东南三种,除了西南朝向不太讨置业者喜欢,西南和东南都是优势朝向。其中西南朝向占地最高,约40%;其次是西北朝向,约占32%;东南朝向约占28%。

西北向:1栋3-4单元最大的视野障碍是“世纪山谷花园二期”,“深业”建筑最高41层,也就是说这两栋的西北向最少要40层以上视野才会比较理想。对于1栋5单元倒不受“深业”建筑影响,但它与1栋3单元和4单元共同面临“白石洲三期01-01地块”的威胁,看效果图该地块的建筑不会低。所以基于现状来说至少要40层以才会有比较好的大沙河湿地景观,至于以后是啥情况?取决于“白石洲三期01-01地块”的建筑规划。
东南向:1栋3单元和4单元首当其冲的就是自身地块内的1栋2单元59层建筑遮挡,其次也靠近“白石洲天悦花园”,对着“白石洲三期02-04地块”,看规划效果图建筑高度不低,所以对东南朝向的视野和景观别抱有太高期望值,到后期整个项目完善后基本是城市楼景了。
西南向:该朝向能看多远、看到啥都是可以确定下来的,临近的建筑高度比较矮,12层以上基础视距就有保障了,远处有一些超高层建筑,40层以上远景视野就有了,最理想的还是50层以上,就能看到完整的大沙河湿地景观和深圳湾、伶仃洋海景。
以下视频来源于
深圳新房聚焦
,时长
01:01
PART.伍
主要生活配套
项目自身配建有集中式商业约5.34万㎡,与其相邻并且同期在建的“白石洲天悦花园”也配建有2.72万㎡的集中式商业,而根据规划,整个白石洲项目商业总体量将达40万㎡,深圳能达到这个体量的商业一个巴掌数的过来,将来会是现象级的购物打卡地。
除自身配建的商业外,项目1.5公里范围内还分布有华润万象天地、益田假日广场、华侨城购物广场、中旅广场、华侨城综合市场、方大城购物中心、欧洲城等多个集中式购物中心,这些很多也都是深圳IP属性比较强代表性商业之一,比较优质。

项目1.5公里范围内目前分布有地铁1号线和20号线,其中距离项目最近的是地铁1号线“白石洲站”,从项目步行至此站大约是600米,此站也是地铁五期20号线二期的换乘站,在此站乘车东行1站即可换乘地铁2号线,轨道交通比较便捷。
项目1.5公里范围内分布有北环大道、深南大道、京港澳高速,两条主干道+一条高速公路。相信大家对这几条路不会陌生,深南和北环都是连通南山、福田、罗湖市区的主干道,京港澳高速更是串联深圳多区,承担深圳对外省市联络的重要通道,路陆交通也给出便捷。

整个“沙河五村旧改”将新建4所幼儿园和2所南外系九年制学校,除此之外项目1.5公里范围内目前还分布有南外系香山里小学、南外系南山第二实验学校、南外系沙河小学、南实系南山中英文学校、新安职业技术学院等多所学校。
根据南山区目前的学区划分,项目地块小学对口的是南山外国语集团沙河小学,初中对口的是南山外国语集团第二实验学校(初中部),这只是目前的学校划分,以后随着“沙河五村旧改”的2所南外系九年制学校建成,在家门口读书是大概率的事情。

“沙河五村旧改”作为建面约500万㎡的特大型城市综合体,将会配建大量公共配套,其中也包括多个文体设施/场所,特别值得注意的是项目规划了一条长达1.2公里的中央绿轴,串联各业态空间,打造集购物、旅游、文娱为一体的城市新潮打卡地,茶余饭后逛逛会很惬意。
项目所处的华侨城板块是深圳非常有代表性的低密生活区,生态资源丰富、文旅气质突出,世界之窗、欢乐谷、锦绣中华这几个旅游必访景点都在这里,同时,大沙河生态湿地长廊、燕晗山郊野公园、华侨城湿地公园等也都是休闲娱乐的好去处。

PART.陆
区位及重点规划介绍
南山区地处珠三角大湾区黄金入海口,坐拥深圳湾、前海湾,面向南海,其作为深圳唯一拥有丰富海洋资源的市区,在深圳建设全球海洋中心城市、粤港澳大湾区典范标杆城市,前海合作区等重大国家级战略布局加持下,承接了太多的利好,经济突出、科创企业聚集、成长性极好。
定位和战略规划只是一方面,南山主要还是优质板块多,职住综合服务能力强,不论是产业多元化、产业经济强度、优质人居生活、品质公共配套、自然生态环境、滨海资源景观、文化旅游气质等各方面资源都非常突出,不仅是拿的出手,还都具有明显的标杆、地标属性。

沙河街道位于南山区东部,北起北环大道与桃源街道相邻,南至滨海大道临深圳湾海域,西起沙河东路已粤海街道相邻,东起安托山山脊至侨城东路与香蜜湖、沙头街道相邻,辖区总面积25.23平方千米,是高度建成且产业、居住、生态、旅游、滨海资源资源都比较突出的街道。
街道由红树湾和华侨城两大组团组成,大家所熟知的超级总部基地、华侨城国家湿地公园、世界之窗、观乐谷、锦绣中华、华侨城欢乐海岸、大沙河湿地长廊、燕晗山郊野公园、安托山自然艺术公园、华侨城纯水岸、华侨城天鹅堡、中信红树湾等都是沙河街道的优质资源。

项目所属的华侨城板块一直以低密宜居著称,是深圳发展中期形成的一个富人区,人居体验指数与福田香蜜湖齐肩,区域成熟度高、元素丰富、配套完善,不仅有华侨城纯水岸、天鹅堡、天鹅湖、香山美墅等名气比较大老牌豪宅社区,欢乐谷也是深圳为数不多的旅游必访地之一。
当然,华侨城也不是都是好的元素,比如受历史影响,白石洲连片的城中村落就与大家所认知的华侨城片区环境有点格格不入,同时受制于早期比较粗犷的城市规划,自身区域建筑布局显得有些凌乱,医疗、大型集中式商业也是欠缺的,居住没啥毛病,但生活配套有点依赖“邻居”辐射。

华侨城板块发展起步比较早,除了白石洲片区城中墟市氛围感还比较重,其它区域商品房化程度都是比较高的,随着绿景中国“沙河五村旧改”项目陆续推进,片区将进入全面商品房化时代,城市界面会焕然一新,居住属性会更加纯粹,公共配套服能力也会大幅提升。
“沙河五村旧改”项目于2014年正式纳入城市更新计划,10年时间,这座承载了一代深圳人梦想起点的城中墟市,将在“绿景中国”手上进阶成长和蜕变。整个项目兑现将呈现一座约500万㎡建面的综合体大城,它的建设过程将持续推动区域人居、环境、配套、价值提升。

与很多成熟板块一样,华侨城基本没啥可供直接开发的白地,向新发展主要依赖城市更新,板块除了沙河五村城市更新单元外,还储备有金三角大厦、侨城北恒通、天虹商业城配送中心、兆方投资大楼、高发科技园多个已立项城市更新项目,它们将合力推动区域向新发展。
值得注意的是,这些旧改项目中除了沙河五村城市更新单元是集居住、商业、办公、公共配套的城市综合体外,其它几个项目都是纯粹的产业项目,未来3-5年将为区域释放大量优质产业空间,吸引更多企业及人才入驻,华侨城板块虽已成熟,但仍会持续精进、完善!

除了自身资源和规划优势,华侨城作为深圳发展中期就建立起的“富人区”,在自身产业不咋突出的情况下,价值和热度依然不减,跟它所处的有利区位有直接关系。南侧毗邻超级总部基地、西侧沿着大沙河分布着留仙洞总部基地、西丽高铁新城、高新园总部基地、后海总基地。
前期的白石洲就是因为高新园而繁荣,近两年留仙洞总部基地、后海总部基地正在加速完善,超级总部基地也在如火如荼的兑现,未来居住消费需求量只会更大,白石洲凭借空间距离优势,绿景项目庞大的体量和强大的公共配套服务能力,未来依然可以承接最强产业阵容发展利好。

好的区位也需要有好的路网和地铁才能发挥出最大效能,华侨城板块北起北环大道、南止深南大道,这两条路通勤福田、罗湖都也很方便,同时区域目前还布局有1、2号线,可实现2站高新园、4站后海/前海、5站宝中/车公庙、6站香蜜湖、7站福田CBD,这都是半小时能辐射到的范围。
地铁五期在建的20、29号线会在白石洲设换乘站,20号线在市区段与1号线重合度高,主要缓解1号线的运营压力,29号线就比较有看点,一方面对本项目来说坐地铁更近了,另一方面可实现项目3站到超级总部基地,4站到西丽高铁新城/留仙洞总部基地。

根据《南山区国土空间分区规划(2021-2035年)》公示文件提出,南山将构建“双核双心,两轴三片”的总体格局。华侨城板块正好处在两轴(总部经济轴和科技创新轴)的十字交汇的黄金分割点上,而此处的大沙河生态景观带也将会被打造成深圳唯一的“中央公园”。
印证了华侨城板块的核心区位的同时,也是对它经济价值基础的肯定,中央公园的布局不仅预见了这里将成为深圳城市的中心,还预见到了未来社会生活中人们对于自然和娱乐的多样化追求。可以想象一下,未来深圳中央公园建成后,深圳湾CBD的城市质感又将迎来一次跃级提升。

楼盘详情咨询:4001384006转999 ,售楼处电话、营销中心电话、价格、地址、户型图、小区图片、区位优势、交通、周边商业配套等楼盘详细资料;更详细楼盘资料和最新折扣价格,请拨打售楼处电话。开发商售楼处直销_欢迎来电预约尊享内部折扣_匠心钜制恭迎品鉴!售楼处电话: 4001384006转999
声明:本文由入驻焦点开放平台的作者撰写,除焦点官方账号外,观点仅代表作者本人,不代表焦点立场。
