深圳信达金尊府怎么样!信达金尊府优点缺点分析,信达金尊府售楼处电话
扫描到手机,新闻随时看
扫一扫,用手机看文章
更加方便分享给朋友
信达金尊府售楼处电话:400 138 4006 转666【售楼处咨询热线】
秉承精工匠心,信达·金尊府将东方内在神韵与外在工法融入现代建筑当中,匠筑中式园林,打造现代舒适人居,擘画湾区理想居境。


走近金尊府,首先映入眼帘的是恢弘门头,其匾额、门钹、聚宝盆、平枋、门扇皆有典故,凝注能工巧匠之思,将中式府邸演绎得淋漓尽致。

推门而入,步入御道,脚踏花型地雕,御道两侧流水潺潺,寓意山院水园的意境构成,道路中央莲花雕纹寓意“步步莲升”,八盏铜铸宫灯更是定调了尊崇入园仪式感。

途径千步珠帘亭, 步入园林之中,赏鉴清幽逸境之美。

漫步在风雅的东方园林中,鉴赏约1.8万㎡园林,沉醉清幽逸境:一水一石皆布局有方,一亭一阁均各具风韵,一花一木皆情境相生。荟萃叠石、理水、植栽、雕艺等中式元素,营造出极富东方韵味的中式园林。

足不出园,便可尽享山之意趣、水之灵动——“一苑八府”景观犹如巨幅画卷铺展眼前,天下名园菁华荟萃,十三重胜景勾勒诗意,咫尺之间写意千里,每一片叶、每一朵花皆引人驻足,赏心悦目。

景中隐筑,筑中有景,金尊府楼栋屹立园中,外立面选用新中式风格,结合古典设计与现代工艺,甄选真石漆材质、铝板、干挂石材,历久弥新。


一府棋定坪山城芯门户,距地铁快线14号线(在建中)牛角龙站约600m(最终以地铁开通后的实际距离为准),12站可达福田,速链全城,悠享湾区前沿生活。
来源:深圳市城市轨道交通第四期建设规划
天虹商场、益田假日世界等奢繁配套敬候,坪山文化中心、双公园、三甲医院环伺,精彩生活一站畅享。
来源:坪山区人民政府官网;深圳市坪山区建筑工务署
除却丰盛配套,金尊府的臻质打造亦深入人心——约6-6.3m层高双入户大堂,全石材工艺地面,镌刻威仪礼序。
约1800个车位敬候尊驾,奢享约1:1.18车位比、2梯4户奢适梯户比,从电梯可直达地下车库,泊车亦是享受。
出则声势尊赫,入则自然舒逸,纵享约3-3.1m层高,空间阔绰,阳光满溢。
准现楼呈献,无需漫长等待,亲眼所鉴园林景致、美宅品质,即买即住即享。

信达金尊府,以高宅府居焕新中式人居生活,以新中式匠筑对话世界,至此,一府归心,美好同行。

01
项目基础信息
信达金尊府位于深圳坪山区中山大道及锦龙大道交汇处东南侧,东侧为中山小学和中学,西侧紧邻锦龙大道,北侧为力高君御国际,南侧为京基御景印象。项目用地面积36911.51㎡,总建筑面积为236147.46㎡,其中计容建筑面积166101㎡(含45000㎡保障房),容积率为4.55, 包括:9栋高层建筑、1栋幼儿园、2层地下室、沿街商业及配套用房。

项目整体的区位配套较为不错,周边聚集众多住宅和商业项目,应该是整个坪山区商品房最集中的区域之一,发展势头较为不错。根据规划,地铁14号线将在坪山大道与体育二路交汇,距离项目步行距离约600-700米左右。
项目备案名称:金尊府
占地面积: 36911.51 平方米
建筑面积:235856.32平方米
计容建筑面积:167982.41平方米
住宅建面:100851平方米
保障性住房:45000平方米
商业:10000平方米
容积率:4.5
绿化率:40%
停车位:共有1800个地下停车位
开发商电话:4000-666-032转分机号1099
楼栋总数:5栋10座
总户数:1526户(含保障房)
车位比:1:1.17(360个充电车位)
物业费描述:物业管理费4.8每平方米

园林效果




(园林效果图)

(园林实拍图)
02
户型赏析
金尊府项目总建筑面积23万㎡,产品以89-141㎡的奢适三-四房为主,项目集观赏、游玩、居住等功能为一体。

(户型占比)
项目共有5栋10座建筑物围合组成,户型为单层四户分布。 共有四种户型
A户型建筑面积约89㎡三房两厅一卫
B户型建筑面积约95㎡三房两厅两卫
C1、C2户型建筑面积约 115㎡四房两厅两卫
D户型建筑面积约141㎡四房两厅两卫
(网爆户型,最终以开发商为准)

(平面图)
A户型建筑面积约89㎡三房两厅一卫
南向看花园,双面采光
因为不能搭板,整体布局有变化

(89平米户型,图源:网络)
B户型建筑面积约95㎡三房两厅两卫
三开间朝南,经典三房户型
卫生间干湿分离,明厨卫
动静分区,整体布局不错!

(95平米户型)
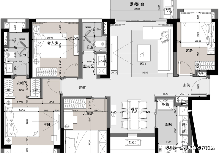
C1户型建筑面积约 115㎡四房两厅两卫
户型北向卧室较多!
横厅设计,改后的阳台较小
主卧自然通透,U型厨房实用性能优秀

(115平米户型,图源:网络)
C2户型建筑面积约 115㎡四房两厅两卫
南北通透设计,北向阳台,看园林的还不错
主卧自然通透,设步入式衣帽间
明厨卫 、动静分区、干湿分离

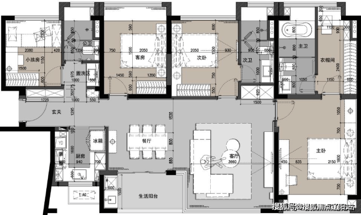
D户型建筑面积约141㎡四房两厅两卫
户型方正,横厅设计彰显自由生活
客餐厅一体设计,宽约 7.87.8 米
双套房设计,主人配备超大衣帽间
明厨卫,独立玄关收纳系统
次要居住空间没 有提升并且同样是北 向卧室过多 。

(141平米户型,图源:网络)
03
区位未来
项目位于坪山碧岭沙湖片区生态腹地,地处坪山中心区辐射圈,借势坪山的深圳东进战略支点地位,尽享高起点城市战略规划,以碧岭沙湖+坪山中心区双核擎动,助力坪山打造“中国制造2025”的扛鼎之区。
坪山高新区:四大国家金字招牌加持,深圳高新区“两核”之一,与南山高新园区并列,形成“西有南山,东有坪山”的城市科创中心格局。
产学研创新智谷:以硅谷为样本,以坪山高新区+坪山大学城产学研一体崛起的模式,助力深圳东部崛起。

04
周边配套
目前项目周边建设比较成熟,待到完成所有手续,业主就可以收楼了,周边的有京基御景印象、力高君御国际,还有中学校等。

(周边实拍)
交通: 地铁方面,距离东部快线14号线(在建)沙湖站约500米,未来9站直达福田CBD。

(沙湖站示意图)
高铁:坪山高铁站
公交:同富路口站(812路、764路、935路、458路等)。

(示意图)
商业: 沿着坪山大道,周边的商业非常集中,几百米之隔的深业东城国际内就有中型购物中心“天虹商场”,对面的力高君御国际也含有社区型商业等等;未来地铁站周边的中小型企业总部基地也将发展起来,龙光玖云著、潮商广场和泰禾中央广场接连建成,这里将形成坪山非常重要的商圈之一。

(示意图)
教育: 项目目前在中山小学和中山中学的学区范围内,一路之隔,教育配套较为方便。靠近学校的部分单位会有一定的学校噪音影响,但学校噪音都在白天,对日常居家应该影响不会特别大。幼儿园新城阳光幼儿园,坪山新区东城幼儿园,东晟时代幼儿园,爱诚幼儿园,沙湖幼儿园 等。

(示意图)
深圳市坪山中山小学位于中山大道与锦龙大道旁,依山傍水(马峦山、大山陂水库),环境秀美,交通便捷,是市区进入坪山的门户学校,是坪山区成立后建设的第一个现代化公办小学。学校目前占地面积16937.94平方米,总建筑面积18322.35平方米。 中山小学由习性教育创立者,深圳市十佳优秀校长、坪山首批高层次人才曾宇宁带领一批优秀教师筹办。
中山中学于牛角龙片区,振环路东侧、牛昌路北侧、牛角龙路西侧、泰安路南侧区域。占地面积16937.94平方米,总建筑面积18061.19平方米。目前中山小学招生地段:坪环比亚迪路以南片区、洋母帐村、马峦社区、坪环社区。办学规模为36个班、1620个学位、教师120余人,后期随着中山中学的成立还会逐步增加。
医疗: 医院吴茂禄西医内科诊所;聚龙医院(已营业),距项目约6公里;坪山第三人民医院(规划中),距项目约10.4公里。深圳侨源门诊部。
休闲娱乐: 泰禾中央广场约2万㎡酒店(规划中);约3.5万㎡艺术时尚创意主题公园;230米城市天际国际会所。1.5公里内坪山体育场、网球场。 小区内部配套游泳池、会所。
野趣山境:距AAAA级景区马峦山仅约1.5km,享约28km2山林水瀑景观。
秀丽水境:与坪山河隔路而邻,区域将构建沿坪山河滨水生态轴线,打造缤纷滨水生活体验。
休闲园境:近享代建儿童公园,周边拥有鹏茜国家矿山公园、燕子岭公园、大山陂水库等生态公园配套。

深圳信达金尊府售楼处电话:4001384006转666,备案价,有多少栋,几梯几户,小区有多少户人家,容积率,总高有多少层,交楼时间,户型有那些,离地铁近吗,是带什么学校,物业费是多少,精装修吗,停车位够吗?停车位有多少个?,在那个位置,周边有什么规划,营销中心在那里?什么时候开盘?多少钱一平,周边配套,楼盘详情,值得买吗,潜力升值如何,升值空间大不大,地址,周边有什么规划,周边商业配套,最新优惠情况。以上问题请致电开发商营销中心售楼处咨询!
声明:本文由入驻焦点开放平台的作者撰写,除焦点官方账号外,观点仅代表作者本人,不代表焦点立场。
