龙岸君粼(深圳)龙岸君粼_龙岸君粼欢迎您_龙岸君粼详情解析
扫描到手机,新闻随时看
扫一扫,用手机看文章
更加方便分享给朋友
{2023官}深圳龙岸君粼售楼处电话4001384006转888,欢迎来电预约置业顾问一对一接待〢
深圳龙岸君粼售楼处电话400-138-4006转888来电预约置业顾问一对一接待,享受内部折扣_恭迎品鉴〢
深圳龙岸君粼售楼处电话400 138 4006转888售楼中心欢迎您丨在售户型丨项目介绍丨周边配套丨详情解答
龙岸君粼自带5300㎡湖畔,10万㎡花园,是名副其实的湖畔别墅;项目的地理位置也很好,紧邻五和大道和梅关快速,15-30分钟可以到达全市各个中心区域;而且项目整体容积率仅1.98!【金光华·龙岸君粼开发商售楼处免费咨询/预约热线📞: 400-138-4006转888,中介勿扰】
龙岸君粼规划总占地约10万㎡,总建筑面积约27万㎡。分为三期开发,主要以临湖别墅、半山叠墅、高层住宅和风情商业街多种业态组成的低密度湖山别墅与叠墅的住区,由高层、多层、别墅三种户型组成。其中一二期项目早在2009年就入市了,距离现在已有十多年了。而龙岸花园三期为高层住宅,推售约465套房源。
【项目基本信息】
【项目名称】金光华龙岸君粼
【占地面积】约10万㎡
【建筑面积】约28万㎡
【交房时间】现楼
【产权年限】70年住宅
【容积率】1.98
【绿化率】60%
【开发商】金光华集团
龙岸君粼值不值得买?
【五大超级商圈,咫尺漫步繁华】
商业配套: 星河World·Coco Park丨龙华万象城丨Coco City丨红山6979丨福田CBD商圈
文化配套:深圳文化馆新馆丨展览馆丨演艺馆丨深圳图书馆新馆丨深圳第二美术馆
医疗配套:深圳市新华医院丨深圳市第二儿童医院
产业配套:星河World总部丨深国际华南物流园丨坂雪岗科技城核心-华为总部基地丨深圳北站CBD
【立体枢纽加速度·让大人物从容转瞬圳央】
“湾区级交通网格”:深圳北站—五和双枢纽,一小时大湾区各城从容出行,畅达全国
“地铁网格黄金交叉点”:深圳地铁10号线光雅园,南通福田、北接坂田、西联北站
【宽怀壮阔·无价湖山】
比肩世界湖区的优越资源:龙岸君粼位处深圳“中心湖区“,是深圳最稠密的湖区所在地,项目周边环伺4大自然生态湖泊---民治水库、民乐水库、雅宝水库、南坑水库,居住在此,湖岸微澜风光无限,滋养健康涵养心境,孕育都会生活于家族贵雅之道;独享城市无价峰顶对晤湖景无垠的豁达高远。
上风上水,龙脉加持:原生龙脉地貌,得天地水势,是为钟灵毓秀,纳龙脉福气。
【1.98低密墅区,十年未曾现世的奢侈】
龙岸君粼占地面积约10万㎡,得以享受圳央独一的1.98低密度墅区,此等低密,深圳数十年难得一见,为渴望居住圳央同时兼得低密尺度的高净值人士,打造值得珍藏传世的超配人居大宅。
【城央阔府 每席皆传世】
100%全南向大宅设计
保留最大程度观景采光,在圳央大户型的设计中,绝少得见,为业主打造24小时自然通风的品质人居。
2梯3户、2梯4户臻装大宅
傲居深圳中央的建面约85-175㎡臻装大宅,以2梯3户或2梯4户的超低梯户比,定制圳央纯粹大户型住区,为城市高净值人士打造更舒适的归家礼制。
【一席大师打造】
世界级豪宅同款设计师,室内设计CCD-郑忠先生创立
全球酒店室内设计排行第一
园林升级山水比德--
连续3年蝉联时代楼盘中国地产景观设计
竞争力全国第一。
【28载城市运营·匠铸金光华圳央墅区】
金光华集团,立足于中国深圳,致力于成为粤港澳湾区高品质城市综合运营商。
2023年厚积薄发,巅峰再续,金光华依托区域的商户资源,建造多个低密豪宅项目,以溪山·君樾、龙岸·君粼项目为蓝本,联动片区内金光华储备用地形成大区域开发,构筑总建面逾150万㎡的全新人居版图——金光华圳央墅区。
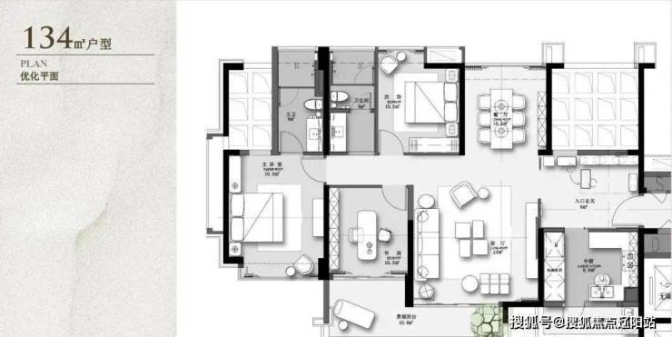
龙岸君粼户型图及平面图:
样板间实拍
地铁交通配套:
金光华龙岸花园交通便利,属于地铁楼盘,临近2条地铁线路,4号线民治站,5号线五和站,项目距离光雅园站步行约200米左右,从光雅园向北可到达五和站,换乘5号线;项目周边交通相对发达,临近五和大道、布龙路、梅观高速等城市道路,自驾出行相对便捷。
商业,步行可达8号仓奥特莱斯,想去星河COCO Park、红山6979、山姆会员店、壹方城、Costco(在建)等商圈逛买,也很方便;医疗健康方面,有在建的新华医院、深圳第二儿童医院两所大型三甲医院等。
商业配套
项目自带社区商业,主要以社区铺位为主,周边8号仓奥特莱市购物中心、光雅园站两站即达建面约8万㎡的Cocopark等大型购物商场万科城临街式商业。

商业,步行可达8号仓奥特莱斯,想去星河COCO Park、红山6979、山姆会员店、壹方城、Costco(在建)等商圈逛买,也很方便;医疗健康方面,有在建的新华医院、深圳第二儿童医院两所大型三甲医院等。
壹方城、8号仓、山姆会员店、红山6979。
学校教育配套:
龙岸君粼小区周边教育资源丰富,孩子上学比较方便,小区内有一所潜龙学校附属龙岸幼儿园,位于会所旁边。根据深圳市教育局网站查询,龙岸花园目前的学区是华南实验学校(小学部、初中部),周边民办学校有万科双语学校。
教育,周边有华南实验学校、万科双语学校等。万科双语学校是一所高品质、国际化的九年一贯制民办学校,实行小班制教学,有中考和国际两个升学选择,有一定优势申请热门的万科梅沙书院,满足不同家庭就学需要。(学区划分以教育局公布为准).
休闲配套
深圳龙岸君粼售楼处电话4001384006转888,来电预约现场销售一对一接待,享受内部折扣_恭迎品鉴〢
温馨提示:过来营销中心参观样板间请记得提前拨打开发商售楼处400热线预约,预约看房价格更优惠,感谢您的配合!
免责声明©:以上图文所发布的关于楼盘信息仅供参考,所有图文资料及说明请以最终批文及双方在楼盘营销中心现场签署的买卖合同为准;本图文内容如无意中侵犯某方权益,请联系我们将会及时处理。
声明:本文由入驻焦点开放平台的作者撰写,除焦点官方账号外,观点仅代表作者本人,不代表焦点立场。
