深圳融湖盛景花园怎么样!融湖盛景花园优点缺点分析,融湖盛景花园售楼处电话
扫描到手机,新闻随时看
扫一扫,用手机看文章
更加方便分享给朋友
深圳《融湖盛景花园》售楼处电话4001384006转666,欢迎来电预约参观样板房〢
深圳《融湖盛景花园》售楼处电话400-138-4006转666来电预约置业顾问一对一接待,享受内部折扣_
深圳融湖盛景花园开发商售楼处电话400 138 4006转666售楼中心,深圳融湖盛景花园怎么样?价格多少?楼盘详情介绍,包含售楼处电话、地址、户型图、小区图片、区位优势、交通、周边商业配套等楼盘详细资料;更详细楼盘资料和最新折扣价格,请拨打售楼处电话,销售会为您详细介绍楼盘
融湖盛景花园位于阳光路与辅岐路交汇处,项目总占地面积约23万㎡,总建面约100万㎡,项目分为五期开发。开发整个项目的运作已经有10余年的时间,一期的融湖世纪花园和二期的融湖时代花园前几年已入市,本次推出的融湖居为三期地块,三期已于2020年6月12日开放示范单位,四期(规划4万平集中商业体)还处于建设阶段,五期收官之作住宅开发中,本次将推出五期共1801套房源,首推约900套左右。
融湖中心城整体效果图
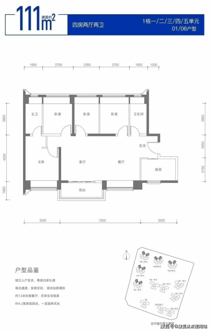
首先来看看融湖盛景花园的户型图,本期共有三个户型,82㎡3房、94㎡3房2卫、111㎡4房2卫。延续融湖中心城一贯的风格,户型主要以刚改户型为主。



融湖中心城·五期项目位于龙岗区平湖街道辅岐路与辅城坳阳光路交叉口东北侧,距离地铁10号线禾花站约660米。融湖盛景花园东侧是三期融湖居,北侧是一期融湖中心城,西北侧在建保障房项目。
【项目名称】盛景花园(融湖中心城五期)
【开发商】深圳市鼎宏投资发展有限公司
【物业公司】岗宏城拓物业管理有限公司
【项目地址】位于平吉大道与平龙路交汇处
【占地面积】约5万㎡
【建筑面积】约27万㎡
【容积率】3.96
【推售产品】82㎡-94㎡-111㎡3房-4房
【总户数】1805
【车位比】1:0.88
交通:项目附近有建设中的10号线地铁“禾花站”,从项目步行至地铁站的距离约500米(根据百度地图测距),属于地铁口物业,轨道交通出行非常便捷。另外,10号线“平湖站”距离也较近,步行可达,平湖汽车站、火车站都集聚于此,是平湖的交通枢纽中心。

项目旁边就是平吉大道,这条路是平湖产业升级的龙头典范,也就是平湖的第大道,上每条高速都是非常方便的。走清平可以20分钟到罗湖、25分钟到福田;清平转北环/南坪,35分钟到南山;平吉大道上沈海高速/机荷高速。
商业:目前融湖中心城一期底层临街商铺可满足日常生活休闲所需,三期融湖居底层商业目前也逐渐发展起来。
未来四期将建成集中商业,将极大的的改善项目和周边的商业环境。目前4期已经封顶,预计2023年可投入使用,五期也规划有1.17万㎡临街底商。据悉,四期及五期的商业均为开发商自持。
项目周边商业配套高度聚合,不仅有华南城、煕璟城、海源城等商圈环绕,更有中国首个24小时商业中心万达广场入驻平湖;
教育:项目紧邻九年一贯制公立信德学校,作为片区优质学府。
信德学校以“立信立德,好学尚美”的办学理念和优质教育高效管理的教学模式著称是龙岗区影响力卓著的先进学校
深圳《融湖盛景花园》售楼处电话4001384006转666,欢迎来电预约参观样板房〢
深圳《融湖盛景花园》售楼处电话400-138-4006转666来电预约置业顾问一对一接待,享受内部折扣_
深圳融湖盛景花园开发商售楼处电话400 138 4006转666售楼中心,深圳融湖盛景花园怎么样?价格多少?楼盘详情介绍,包含售楼处电话、地址、户型图、小区图片、区位优势、交通、周边商业配套等楼盘详细资料;更详细楼盘资料和最新折扣价格,请拨打售楼处电话,销售会为您详细介绍楼盘
声明:本文由入驻焦点开放平台的作者撰写,除焦点官方账号外,观点仅代表作者本人,不代表焦点立场。
