深圳招商臻城花园(首页网站)招商臻城花园售楼处|楼盘详情/最新价格/户型图
扫描到手机,新闻随时看
扫一扫,用手机看文章
更加方便分享给朋友
【招商臻城花园】咨询热线:4006138687营销中心
【招商臻城花园】开发商售楼处电话:400 613 8687
【招商臻城花园】售楼部电话:400-613-8687
来电支持VR看房, 在线算价。可免费预约专车一对一接送
温馨提示:看房请务必提前预约,避免临时无人接待,感谢您的配合!
招商臻城花园开发商售楼处24小时电话:400 613 8687
欢迎来电咨询楼盘、看房请提前预约,电话预约看房享受专属优惠折扣。
招商臻城花园售楼处电话:400 613 8687售楼中心,楼盘项目全面介绍,本电话为开发商提供线上售楼电话,楼盘最低价格和最新优惠折扣,包含楼盘简介、售楼电话、小区户型图片、营销中心位置、区位优势、交通、周边商业配套、户型图等楼盘详情海语天悦湾 国际金融岛 湾居生活迭代之作 金融岛芯(快线)3站珠江新城
招商臻城,由百年央企、世界500强招商局旗下的招商蛇口开发的百万方都会大城,项目近享3/5/14号线地铁出行,另规划有17号/21号/25号线地铁,六线地铁畅达全城;坐拥占地约131.074万m²三联郊野公园、约1.43万m²银湖山郊野公园、约79万㎡石芽岭公园三大公园生态圈;五大繁盛商圈、约4.4万㎡精品商业环绕。项目延续招商蛇口品质人居血统,精铸品质立面,全屋臻选品牌,即将推售建面约81-140㎡产品!
建议您可以拨打我们招商臻城花园楼盘营销中心☎️400-613-8687免费咨询电话与售楼处现场销售人员直接沟通。

基础信息
【☆】项目总建面:约96万㎡
【☆】一期占地约4.3万㎡,建面约25万㎡
【☆】项目业态:普通住宅
【☆】商业建面:约4.4万㎡
【☆】户数:总套数2408,可售逾1000套
【☆】容积率:5.64
【☆】绿化率:40%
【☆】主力产品:建面约 81-140㎡品质人居

周边配套:
a) 商业:自带4.4万方的商业:
b)交通:连接布龙路上水官和南坪方便,地铁上水径1.4公里
c) 教育:目前带南京师范大学附属龙岗学校,旁边有学校再建,目前尚未命名

龙岗布吉「 招商臻城」
售楼处电话:400 889 3221
案场限流 看房提前来电预约登记
温馨提示:点击上方号码可拨打
请务必致电后与销售电话确认时间,确认后行前往方可参观 !仅预约客户可进入销售现场,感谢您的理解和支持!
周边未来的前景:目前现状主要是以旧改为主的,周边20多个旧改项目,政府投入了600亿来打造。自2016年,深圳制定了“东进战略”,目标是将东部打造成为深圳新的发展区,正是看到了布吉蕴藏着巨大的潜在价值,各大开发商都争相在此布局了多个大型旧改项目,招商蛇口以其独到的眼光,早在多年前就在布吉布局了招商蛇口三联项目旧改,也就是现在的招商臻城。

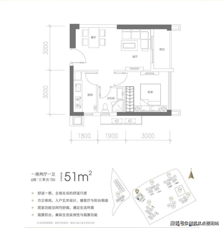
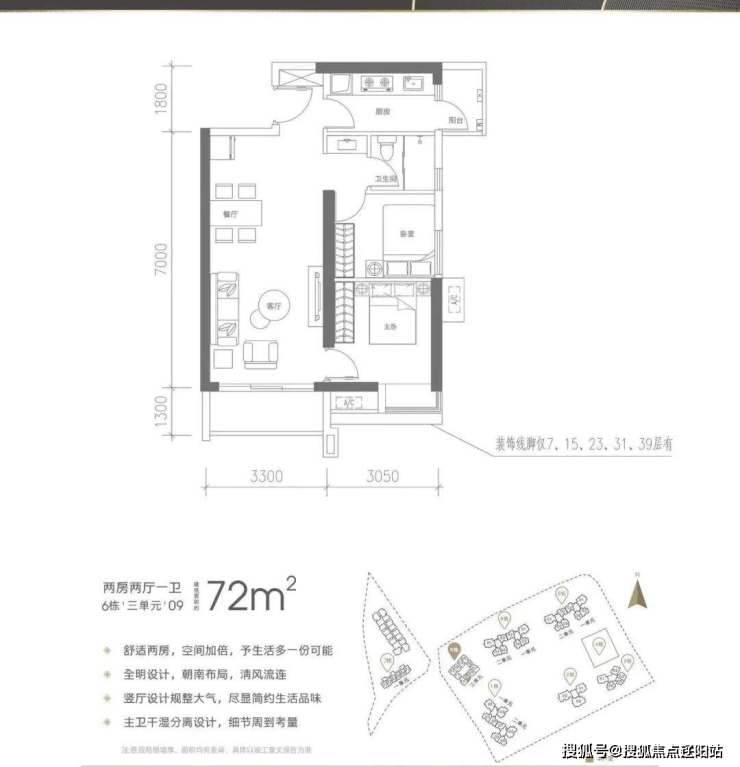
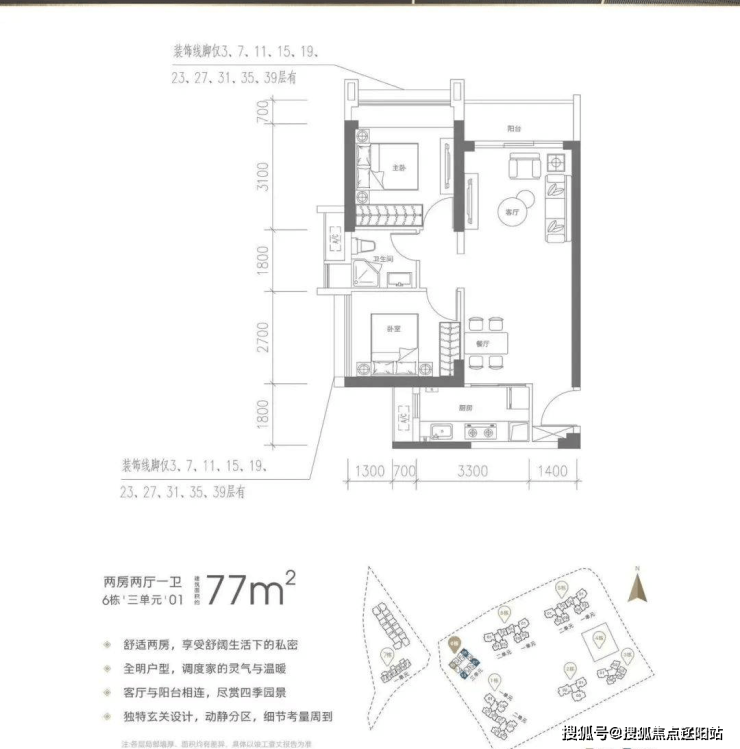
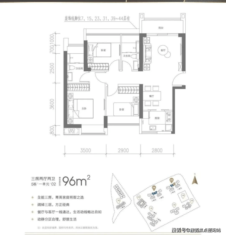
项目在售户型:








【招商臻城花园】售楼处电话☎️400-613-8687 营销中心(中介勿扰)
温馨提醒:我们楼盘售楼部400电话没有设置任何所谓的“分机号”,拨打前请仔细甄别,注意保护个人隐私!谨防上当!
免责声明©:
· 1、本宣传资料仅作为客户邀约邀请,不作为要约或者承诺,对本楼盘配套、交通、学校(建设)规划或者产品介绍,旨在提供相关信息,不意味着本公司对此作出承诺,相关内容不排除因政府相关规划、规定及开发商未能控制原因而发生变化,最终以政府相关部门审批文件为准。
· 2、以上所发布的户型图与样板间实拍图所示平面仅供参考,具体因楼栋、楼层的差别,局部结构、面积等存在不同,不构成要约内容。户型图与样板间内部实拍图所示家具和电器配置仅供参考,不作为交付标准,最终以买卖合同为准。
· 3、双方权利义务以双方最终签订的相关合同为准。
· 4、相关公共配套设施及规划条件以政府审批的文件为准。返回搜狐,查看更多
声明:本文由入驻焦点开放平台的作者撰写,除焦点官方账号外,观点仅代表作者本人,不代表焦点立场。
