御景华府(御景华府)首页网站丨御景华府房价_户型_地址_详情
扫描到手机,新闻随时看
扫一扫,用手机看文章
更加方便分享给朋友
{2023官}深圳御景华府售楼处电话4001384006转888,欢迎来电预约置业顾问一对一接待〢
深圳御景华府售楼处电话400-138-4006转888来电预约置业顾问一对一接待,享受内部折扣_恭迎品鉴〢
深圳御景华府售楼处电话400 138 4006转888售楼中心欢迎您丨在售户型丨项目介绍丨周边配套丨详情解答
2023年“网红”楼盘住宅望眼可止“高端住宅”学府大城,呼之欲出,综合体大盘!大型项目最为引人期待!
鸿荣源集团创立于1991年,历经近30年稳健发展,现已发展成为以地产全产业链综合开发、商业运营、产业发展、金融科技四大板块为核心,多元化经营的大型综合性企业集团。
必买户型:68㎡2房,73-82㎡3房,112㎡4房,小面积大空间;
必买稀缺:3.86容积率,2.4米进深墅级阳台,高新区少见低密纯居;
必买潜力:总价350万起,同功能较周边少60-120万;
必买中心:鹭湖中心&国家高新区双中芯占位;
必买教育:外字系丰盛教育资源。
御景华府
# HONGRONGYUAN BOYUEFU #
今日龙华住宅推荐——御景华府
⭕️现房⭕️现房⭕️现房
👉超值价格:单价4⃣字起,总价3⃣字头起
🏆入驻北部中心 鹭湖富人区🏆
🉐龙华低密纯居准现楼
👍鹭湖中心城·高新园区核心
👊10分钟华为👊20分钟北站
👍双地铁物业·外国语学校·6大公园
﹉﹉﹉﹉﹉﹉﹉﹉﹉﹉
🌟8平方以上大阳台,超高使用率🌟
▶️67-70㎡两房,总价320万-340万
▶️73-84㎡三房一卫,总价340-390万
▶️89-91㎡三房两卫,总价375-446万
▶️104-119㎡
项目学校配套
项目自带2000㎡幼儿园,与深圳外国语学校高中部一路之隔,北临龙华区外国语学校,周边有新鹭湖外国语、新加坡茵维特中英文学校、教科院附属小学等学校。

项目文体公园
有 鹭湖四馆文化地标:图书馆、群艺馆、大剧院、科技馆 鹭湖四馆文化地标:图书馆、群艺馆、大剧院、科技馆
◎鹭湖四馆文化地标:图书馆、群艺馆、大剧院、科技馆。

◎周边有樟坑径社区公园、鹭湖滨水公园、白鸽湖文化公园等等,赏自然美景,感受自然绽放的美好。

项目商业配套
步行10分钟内即达鸿荣源运营的三一云都4万㎡大型商业,约500米抵达伟禄雅苑3万㎡先施购物中心,荣超新时代广场约3.1万㎡购物中心等,尽享周边观澜湖新城mall、龙华山姆会员店、观澜天虹等配套商业资源。

项目医院配套
低频需求的配套亦无需涉足过远,从社康到三甲,临近安心守护,为您及家人提供最好的健康保障。

项目基础数据
【开发商】:深圳市泰富安投资有限公司
【绿化率】:30%
【总户数】:530户
【停车位】:763个
【梯户比】:2梯4户、2梯5户、2梯6户
【物业费】:4.6元
【物业公司】:中海物业
【主推住宅】:67-73-84-89-112㎡
【占地面积】:18462㎡
【建筑面积】:104994㎡
【产权年限】:70年(2019-2089)
【物业类型】:住宅
【交付标准】:年底毛坯交付
【楼栋规划】:1栋/2栋/3栋/5栋为住宅 4栋为幼儿园
区域优势
点式围合布局 高颜值现代审美建筑 点式围合布局 高颜值现代审美建筑点式围合布局 高颜值现代审美建
◎行政+科技+文化+生活综合服务中心,高标准/高品质/高起点的发展定位,鹭湖中心城,龙华六大重点片区之一,山水交融,揽山阅湖。

◎龙华行政中心所在,区域蝶变在即,区府所在,必定中心,龙华区政府所在的行政重地坐落于麓湖中心城,行政中心的坐落,未来城市面貌与生活配套,必将有一个质的飞跃。
◎以高新科创为深圳、为中国贡献鹭湖力量,鹭湖中心城位于深圳中优北拓战略的重要节点,占位于一圈一区三廊发展格局的产值超万亿的数字经济圈,2019年观澜高新园已纳入国家高新园,成为深圳创新驱动核心引擎。

项目交通
地铁18、22号线,快速通达福田保税区、光明科学城、会展新城等区域,鹭湖枢纽交通体系,无缝连接城市中心。

🚇主干道:梅观高速、机荷高速、五和大道,梅观高速,构建三横六纵道路系统。
🚇有轨电车:项目距离龙华有轨电车高新区东站直线距离约500米,连接地铁4号线。
🚇深广中轴城际:串联松山湖–光明科学城–鹭湖科技文化核心–坂雪岗科技城–皇岗口岸等片区,加速鹭湖中心枢纽建设。
项目在售情况

景观园林特色
点式围合布局 高颜值现代审美建筑 点式围合布局 高颜值现代审美建筑点式围合布局 高颜值现代审美建筑
◎塔楼纯点式布局,采光通风视野俱佳,以生态阔景人居为理念,打造瞰景阔宅,值此3.86低密,改善一步到位,低层看园林,中高层无遮挡瞰山景。
◎智享乐园,童真时光,孩子放学后,是孩子撒欢玩乐的好时光,打造下沉智享乐园,让孩子尽情释放玩乐天性。

◎一步到位,让有限的空间,契合生命中每个角色的完美转换,多数户型使用率约80%,尽享生活舒适所在。

◎一缕微光透过飘窗唤醒惺忪的睡眼,于家中2.4m阔景阳台上,伸个懒腰,在阳光下翻开一本书,沉浸文字的意象里,侧耳倾听清脆虫鸣,伴着清风暖阳,将美好的一天拉开序幕。

◎深入对精工美学的研究,以匠人精神,以先进的工艺工法浇筑,户型设计细节的考量,更是精益求精,打造社区回归舒心居住体验。

中海物业
点式围合布局 高颜值现代审美建筑 点式围合布局 高颜值现代审美建筑点式围合布局 高颜值现代审美建筑
2020年度世界500强第18位,国家首批一级资质物业管理企业,365天关怀备至、24小时无微不至,30°的尊崇、35°的微笑、 75°的专注 ,95°坚持、 180°的严谨。

户型图鉴赏
点式围合布局 高颜值现代审美建筑 点式围合布局 高颜值现代审美建筑点式围合布局 高颜值现代审美建筑

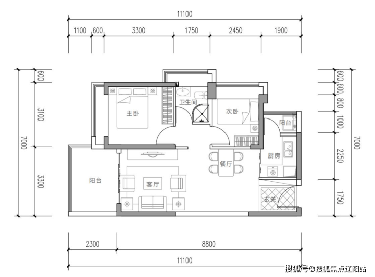
🏆【67-70㎡2房2厅1卫】
精致两房,紧凑实用,全利用空间,正南户型,动静分区互无干扰,干湿分离,双阳台设计, 2.3m*3.3m阔景阳台,舒心自在。

(以2A栋04户型68㎡为例)
🏆【73-84㎡3房2厅1卫】
功能三房,小面积大空间,正南户型,动静分区互无干扰,室室皆带飘窗,双阳台设计, 2.4m*3.7m宽阔大阳台,让生活更有景。

(以1栋04户型82㎡为例)
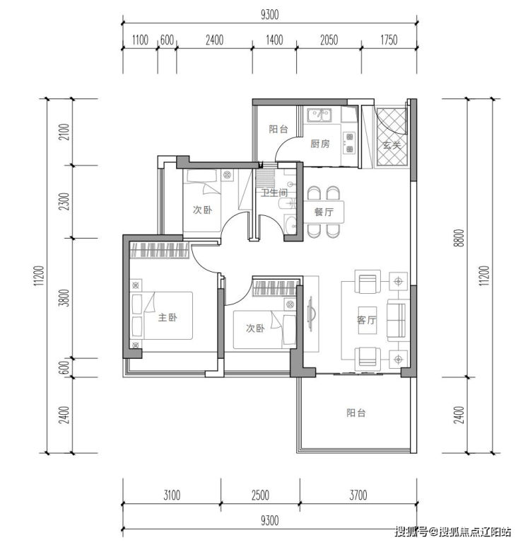
🏆【89-91㎡3房2厅2卫】
舒适三房,方正实用,两卫设计,正南户型,室室皆带飘窗,双阳台设计, 生活、景观明确分区,2.3m*3.7m宽阔阳台。

(以2栋03户型89㎡为例)
🏆【104-119㎡4房2厅2卫】
宽敞四房,南北通透,冬暖夏凉,通风采光俱佳,室室皆带飘窗,双阳台设计, 景观明确分区,2.4m*3.8m阔景阳台,优雅观景。

深圳御景华府售楼处电话4001384006转888,来电预约现场销售一对一接待,享受内部折扣_恭迎品鉴〢
温馨提示:过来营销中心参观样板间请记得提前拨打开发商售楼处400热线预约,预约看房价格更优惠,感谢您的配合!
免责声明©:以上图文所发布的关于楼盘信息仅供参考,所有图文资料及说明请以最终批文及双方在楼盘营销中心现场签署的买卖合同为准;本图文内容如无意中侵犯某方权益,请联系我们将会及时处理。
声明:本文由入驻焦点开放平台的作者撰写,除焦点官方账号外,观点仅代表作者本人,不代表焦点立场。
